London Indymedia

Notting Hill Housing Trust

Sebastian Kornhauser | 14.02.2004 02:41 | Social Struggles | London

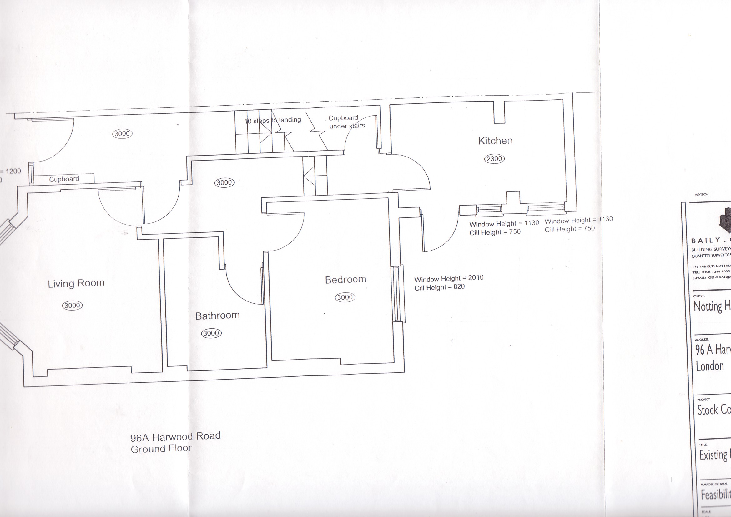
Up to present, I have been discriminated by the Notting Hill Housing Trust for more than 8 years. The Notting Hill Housing Trust is a housing association (Registered Social landlord). I have 3'000 pieces of evidence and support from the British government. Due to very severe disrepair to the property, I lived like an animal for 5 years. It was redecorated in 2000 only when the lady who lived above collapsed and died.



I am subjected to discrimination by Notting Hill Housing Trust and need help to bring a case of discrimination to court or support to instigate a public enquiry.

Sebastian Kornhauser
- e-mail: frontfire@wp.pl

Comments

Hide the following 30 comments

how about a bit of CLEANING ?

14.02.2004 15:29

My brother has rented from them (unfurnished) for 25yrs.
Decoration is his responsibility. And supplying his own cooker.

Were you renting unfurnished too ? Is the sofa theirs ? Did you read your lease ?

In any case, I don't think any of these organisations include a CLEANER in the cost of the rent.
Normally one does that oneself !

Maybe they didn't feel like installing a new cooker into such filth, to soon be in the same state.
Must be your own filth if you've been there 8 yrs. Over that time just 1min cleaning a day would have removed any filth there when you arrived.

What I see in your photos is mostly just uncleaned accumulated filth. Together with signs of the fire being messed up by being used for the wrong purpose.

Is this guy serious ?

plato7


Pretty sad

15.02.2004 13:12


Agree totally with the last comment. Ever heard of DIY? And saying you 'live like an animal' is a bit rich; animals are positively sparkling by comparison.

cleaner


Severe Disrepair

09.03.2004 10:14

It is important to state that these pictures are from the time when Sebastian moved into his flat in 1995. He has since worked very hard to make his home better. I am aware that Notting Hill Housing have numerous obligations under the tenancy agreement which Sebastian signed in 1995 and as a landlord of the property, Notting Hill must take responsibility yet for a long time they have neglected in their responsibility.

Pawel Lewandowski


Contact a Tenants Association!

12.12.2004 10:26

There are a number of NHHT Tenants Associations, most of them area-based. Get in touch with me, saying where you live and I can tell you if there is a local one or not. If there isn't, start one!

One way to embarrass NHHT is to quote the Audit Commission report on them (available on the Audit Commission website), as to where they are falling down in their delivery of services. If necessary you write to the Audit Commission pointing out how your case illustrates their concerns.

I am unclear precisely what you want the Trust to do, and what you have written to them and what they have replied. That is the starting point of any case that may be able to be made. In what way are you alleging they discrinminate against you?

It seems to me that you need to turn a grumble into a grievance. And pursue it.

Bruce Birchall (chair TDAG, secretary Colville-Powis Tenants Action Group).

Bruce Birchall
mail e-mail: TenantsDisabilityActionGroup@Yahoo.co.uk


Confirmation

13.02.2005 22:30

I have had opportunity to read Sebastian's letters and those from Notting Hill (his landlord). From his evidence it is clear that people at this housing association have acted in a disgusting and reprehensible way in their efforts to discriminate him. As a minority Sebastian is a victim of reverse racial discrimination, and there is evidence of credible efforts on the part of the Housing association to evict him from his home on false pretexts in anyway they can. He has identified property allocation fruad committed by Notting Hill Housing and has direct evidence to prove his case which also took place in the property where he lives. Notting Hill Housing on their part covered it up, and still do. During the police investigation into fraudulent allocations which took place in the Borough of Kensington & Chelsea in 2002, Notting Hill Housing Trust has admitted to 43 accounts of fraudulent lettings. The Crown prosecution service was considering whether or not to press charges. In its October 2003 publication about NHHT; The Audit Commission Housing Inspectorate reported a comprehensive failure to follow procedures on the part of Notting Hill in a wide numer of areas. Following this publication, Peter Redman the former Chief Executive of NHHT was forced to resign. There have even been acknowledgements to Sebastian from 10 Downing Street and from the Office of the Deputy Prime Minister about it. It appears that Sebastian has uncovered widespread discrimination towards social housing tenants perpetrated by NHHT and one of the biggest fraud rackets at this organisation in the history of social housing. I kid you not. Well done to him. Question is will anyone ever answer for the suffering forced upon him.

Saris Cohen
mail e-mail: sariss@poczta.fm


I Agree

14.02.2005 16:09

I once lived in London and in a property owned by Notting Hill Housing myself and know that these incidents are true. The flat I rented was appauling and when I wrote to them about it they didn't care. These housing asociations are nothing but filthy slum landlords who make profit on people's suffering. They don't give a shit about peoples quality of life or to improve their standards of living. I know that Notting Hill Housing owns around 20'000 properties in London and I think they should give tenants like this guy the Right to Buy these houses. Anyone who is in business to make people's lives a misery should not be in business.

Barbara Walker


Notting Hill

16.02.2005 02:24

London Government
London Government

In September 2000 the Notting Hill Housing Trust have lied to the British Government during their enquiry purporting that they will house Sebastian in Flat A. However the Housing Association has prior to this already housed 3 people with severe mental health problems in flat A which is a one bedroom flat. It is clear that Notting Hill Housing not only disregards lettings proecedures but is also promoting poverty, multi occupation and overcrowding by reducing people's quality of life and their standards of living.

Dawid Lenartowicz
mail e-mail: xiondesigner@hotmail.com


Notting Hill Housing Trust

17.02.2005 17:18


I cannot continue to suffer in silence about the discrimination Notting Hill Housing Trust has subjected me to for so long when I am aware that I live in a democratic society and have more then enough evidence to support my claim concerning prejudice and injustice. I take comfort from the Charter of Fundemanetal Rights of the European Union Chapter 2 Article 11. Freedom of expression and information.

The Housing association knows that my present housing conditions are unsuitable for me. They have ignored the urgency of my needs. There is a direct link between poor health and inadequate housing. The Office of the Deputy Prime Minister has rightfully published a report in May 2004 titled "The Impact of Overcrowding on Health - A Review of evidence and Literature". I conider this report and other publications issued by the ODPM to be Binding. However Notting Hill Housing Trust once again fails to follow the regulatory code. Maybe one day a public enquiry in the United Kingdom will sit to review my evidence before making an informed decision.

Sebastian Kornhauser

Sebastian Kornhauser
mail e-mail: frontfire@wp.pl


Notting Hill Housing Trust

18.02.2005 05:18

MP
MP

Embassy
Embassy

EU
EU

In August 2000 my home was unlawfully flooded by Notting Hill Housing Trust's contractors. Water poured through the ceiling of my home continuously day and night for 27 days causing extensive damage to my possessions. Notting Hill Housing knew about it but did nothing to stop it. During legal proceedings which took place between 2002 and 2004 at the Central London County Court Notting Hill Housing did everything possible to silence the court case. They even wrote to the Legal Services Commission in a desperate attempt to starve the case of funding. However, justice prevailed and they lost the case. Never theless the £5'000 I have received for damages goes no way to recollect the true scale of damges incurred and the psychological torment experienced.

There is another man who has posted grievances against Notting Hill Housing on the website. This man, Sean Bryson has also complained of his home being deliberately flooded by Notting Hill Housing. I have seen a disturbing pattern.

Sebastian Kornhauser
mail e-mail: frontfire@wp.pl


Notting Hill Housing Trust

19.02.2005 15:57

Two Gardens
Two Gardens

Two Enterances
Two Enterances

NHHT Chair
NHHT Chair

REFUSAL OF GARDEN USE

Out of malice and spite towards me, Notting Hill Housing Trust incorporated two gardens into the fraudulent ground floor tenancy which they provided to three people in 2000 and called it 'one garden'. To reduce my standards of living and to undermine my needs Notting Hill Housing Trust discriminated me through deprivation by refusing me access and the use of garden space. This neglect continued even despite knowledge of disability and receipt of letters from my doctor to Notting Hill Housing requesting that I need use of garden space for therapeutic reasons.

The last bastion of institutional discrimination rests with social housing. It is this discrimination which must be addressed and routed out. Part III of the Disability Discrimination Act 1995 is a legislation which makes it unlawful for a Housing Association or a local authority to discriminate against disabled people in their 'public access' to goods, services and facilities; and the Disability Bill, announced in the Queen's Speech in November 2004, proposes increased responsibilities for housing providers to make reasonable adjustments to policies, practices and procedures, and imposes a duty to take reasonable steps to provide an 'auxiliary aid or service' which would make it easier for a disabled person to rent a property or facilitate a disabled tenant's enjoyment of the premises.

Sebastian Kornhauser
mail e-mail: frontfire@wp.pl


Notting Hill Housing Trust

19.02.2005 16:16

10 Downing Street
10 Downing Street

10 Downing Street
10 Downing Street

ODPM
ODPM

The British government is aware of the way Notting Hill Housing Trust discriminates social housing tenants but remains limited in what it can do to stop it.

Sebastian Kornhauser
mail e-mail: frontfire@wp.pl


Housing

23.02.2005 12:31

I read this article with incredible amazement. The landlord as in this case, Notting Hill Housing Trust has shown fundamental irresponsibility and disregard to the needs of its socially housed tenants as this man points out. I hope his grievances will end too.

Andrew Chard


Health & Safety Violations

24.02.2005 05:45

NHHT Double Standards
NHHT Double Standards

Fire Notice
Fire Notice

Death Certificate
Death Certificate

Between 1995 and 2000 the Notting Hill Housing Trust remained negligent and refused to carry out statutory major refurbishment works to the property when I asked them to although the Housing Association knew that all the flats in the property were not suitable for human habitation. I complained of carbon monoxide poisoning but the Housing Association ignored me. In February 1999, the faulty outdated gas fire was finally condemned as dangerous and unsafe to use. A year later, on 16th May 2000, the woman who lived upstairs in flat C suddenly collapsed and died. Ambulance men came to help her, however she was already dead. A stretcher was brought to collect her but because the passage way is so narrow it could not accommodate this stretcher and her corpse was removed in a large plastic sheet. I informed the Notting Hill Housing Trust of her death and within one week major works were scheduled and drawn up. Within three weeks builders were physically on site to quickly refurbish the entire house. It took the death of someone before Notting Hill Housing took action which I requested them to take a few years earlier. So as you see it is clear that there is a direct link between poor health, death and poor housing. Is this a matter of negligence?

Sebastian Kornhauser
mail e-mail: frontfire@wp.pl


Notting Hill Housing Trust has a policy that disabled tenants get no special pri

12.03.2005 16:28

Joint Committee on the Draft Disability Discrimination Bill
Memorandum from Mr Bruce Birchall (DDB 37)

I would like to submit for the Scrutiny Committee's consideration, some suggestions and ideas that would strengthen the housing provisions of the draft bill and mean that disabled tenants of Registered Social Landlords had meaningful equality of access to housing appropriate to their needs and their impairments as compared to general needs tenants. These suggestions arise from the practice, analysis and thinking of the Tenants' Disability Action Group an independent campaigning group of Notting Hill Housing Trust tenants, of which I am the current chair.

PROBLEM

NHHT doesn't know how many disabled tenants they have got, nor do they know how many flats suitable for disabled tenants they have got in their housing stock. Thus they are unable to plan what they need to do to reduce the shortfall in provision over a given period, such as new disability Legislation may specify, akin to the requirement to have all homes up to Decent Homes Standard by 2010. Disability is invisible and it has failed to plan for the changing needs of tenants who were fit and young when they housed them 30 years ago.

The Decent Homes Standard does not specify anything that meets disabled tenants' needs, such that achieving a Decent Homes Standard in all its homes by a RSL does not, of itself, produce any more options for disabled people. Thus disabled people will still have to pin all their hopes on new-build homes. Whilst The London Plan will require 100% of all new-build homes in London to be of Lifetime Homes Standard in future, only 35% of 23,000 homes a year to be built will be for Social Housing. This situation is discriminatory. Imagine evacuating wheelchair users from a burning building with only one lift. People who can use the stairs will get out faster/be rehoused sooner.

PROBLEM

Registered Social Landlords use a concept of "need" as regards the size of accommodation a household needs, which does not take into account whether a member of the household is a disabled person. This produces too-simplistic equations: eg single person = 1 bedroom flat, which are discriminatory. The disabled tenant is then not offered flats that are appropriate to his or her needs, but pressurised to take less than they need, to get a transfer within a reasonable time span or to get none at all. A related misperception of the needs of a disabled tenant is embodied in the concept of under-occupation. Children grow up and leave their parents' home and the child's bedroom is defined as a "spare" room and tenants can he given incentives to exchange "under-occupied" flats for smaller ones. But the tenant may then need to offer a home to an aged relative who is no longer able to live independently, or the tenant mav become disabled and need carers. The planning process will need to match the increased availability of Enhanced Homes to tenancies with high over-occupation levels. Succession rights for live-in carers (who by definition will tend to be more fit and healthy than the people they care for and outlive them) could easily have the effect of further reducing the number of homes suitable for disabled tenants that are available to them.

Disabled tenants are particularly vulnerable when there is an anti-social neighbour in the same house, as they can be picked on, and feel intimidated. As it is hard to transfer if you are disabled, there is an overwhelming sense of being trapped in your home, unable to escape.

SOLUTION
The database as regards the tenant's needs has to reflect the "extra requirements" of the onset of disability, otherwise the real needs of tenants will be masked by these oppressively limited definitions of need being imposed on them. Planning to meet needs will be undermined if the needs are under-estimated by inadequate definition of needs or inadequate minimum standards being applied.

Conservation Areas and Listed Buildings are potentially problematic obstacles to achieving equality of access to housing for disabled tenants. Only 17% of public buildings have level access at ground floor level and the percentage of dwellings with this feature is probably less than that. With an increase in Buy-to-Let mortgages, more houses previously in single occupation by owner-occupiers are being brought within the scope of the draft Disability Discrimination Bill and a conflict between planning legislation and disability legislation can be anticipated, that will needs addressing, in an increasing share of the housing market. It is inescapable that the major obstacle to non-specialist Housing Associations building and converting homes suitable for rehousing their existing disabled tenants is the way the homes are financed, leading to 100% of first lettings having to go to Local Authority waiting lists.

Though 50% of second lettings may be offered to existing tenants, the fact that so few people in social housing in London ever leave that sector, because London's house prices are so steep, means that the general problem for disabled tenants who are already in social housing, of waiting years for a transfer, will not be eased that much by 100% of new homes being built to Lifetime Homes Standard. It will simply go to other disabled people, not to them.

PROBLEM

Notting Hill Housing Trust has a policy that disabled tenants get no special priority for rehousing unless they are assessed as completely housebound. This policy is driven by the shortage of suitable flats to offer as transfers, not by it being the fair or appropriate treatment of those tenants' needs. However, the disability discrimination bill has as its starting point equitable treatment of disabled tenants and, driven by this priority, it is seen that this policy is dicriminatory:


Extracts from House of Lords


Further Evidence

17.03.2005 01:07

10 Downing Street March 2005
10 Downing Street March 2005

Audit Commission 1
Audit Commission 1

Audit Commission 2
Audit Commission 2

I accuse the Notting Hill Housing Trust of discriminating people with disabilities in British social housing. This Registered Social Landlord operates under the guise of a charitable organisation to avoid taxes and even operates "charity shops" yet in fact it does nothing to genuinely help those in real need. It is not satisfactory to claim to house people in housing need if the condition of housing is filthy, inadequate and poor. The ethics of Notting Hill Housing Trust are an affront to the principles of human dignity and an embarrassment to British values. Everything I say is founded and supported with strong evidence.

Sebastian Kornhauser
mail e-mail: frontfire@wp.pl


Property Aquisition

18.03.2005 03:23

Housing Green Paper
Housing Green Paper

DRC
DRC

(Extracts from Lord Best moved Amendment No. 231A:)

"I recall the Notting Hill Housing Trust buying and modernising homes in north Kensington in the 1970s for £25,000 per house. Those same houses are now worth 100 times that sum—over £2 million. All that increase in value is held within the not-for-profit social housing sector. If the Notting Hill Housing Trust sells a property, the proceeds will be re-used for the social purposes of the trust. It is not helpful simply to say that the original grant must be repaid. In my Notting Hill example, that grant might have represented £20,000, leaving over £2 million as equity appreciation—that is, capital gains for the owner. I realise that the Minister would like the terms of the original grant to ensure that the whole of the capital gains to the house builder can be recycled for social purposes, which is right, but it will be extraordinarily difficult to guarantee that outcome years from now. There is a real danger that the equity in subsidised property, which has made today's housing associations strong and financially secure and enabled them to undertake a range of important social functions, will not be captured where grants are paid to profit-making companies".

There are those who still believe that there is some kind of charitable or philanthropic element to this Housing Association. However as the facts show, some of Notting Hill Housing's more important social functions is property aquisition, making more money, negligence and the discimination of people with disabilities in order to perpetuate the housing get rich quick scheme. The beneficiaries were as always the senior management with an estimated annual salary for the Chief Executive of £109'000 PA

One Quote From Notting Hill Housing Trust.
"We're part of one of the largest housing associations in Britain with a turnover of £86.5 million and assets of approximately £3 billion.What's new. We currently need houses and flats of 1 or more bedrooms in the boroughs of: Barnet, Camden, Ealing, Hammersmith & Fulham, Kensington & Chelsea, Newham, Southwark, Wandsworth and Westminster. Our demand for properties constantly changes, so please contact us if you have a property outside of these areas.



Sebastian Kornhauser
mail e-mail: frontfire@wp.pl


Anti Social Behaviour

18.03.2005 19:05





Throughout 10 years I have been the victim of racist anti semitic abuse. This has taken place between 1995 and 2005. This abuse was directed towards me by three people with severe mental problems. The content of the abuse is "You Jewish Pig, You Jewish Dog, You Jewish Fuck, You Jewish bastard, You Jewish Cunt, You Jewish Filth etc, etc". I have some of this on video to support what I say. This ground floor property is the scene of horrific anti Social behaviour. It is filthy, overcrowded and foul smells linger throughout the premesis. Drugs are bought and sold. In addition to discrimination by the Registered Social landlord Notting Hill Housing Trust I have to cope with extremely disturbed neighbours.

I did not choose to live where I live because I had an abundance of choice. In November 1995 I was given an offer of accommodation by Notting Hill Housing Trust. Had I turned down this offer of housing I would have (as their policy states) "Made myself homeless of my own volition". So in summary the choices I had was either to accept what was given or nothing at all. Therefore, through force of circumstance beyond my control I moved to a troperty I did not want to be in on 4th December 1995 and am trapped in the middle of a very unpleasant situation. The property I live in is small, unergonomic and unsuitable for my needs as I need living space. Death threats have been made on a regular basis by visitors who come to see these people every time I have informed Hammersmith & Fulham Environmental Services about the filth and overcrowding that I am compelled to live with. I have even managed to film these death threats and have them on video. But neither Notting Hill Housing or the police did nothing. Taking into account this is a terraced victorian house and a listed building, problematic living conditions are amplified.

sebastian Kornhauser


Promoting Disturbance & Overcrowding

19.03.2005 12:03




Notting Hill Housing Trust knows that the neighbours they housed are very difficult. Whilst I suffer because of them they too suffer from the conditions of their own living environment. Imagine 3 people living in a small one bedroom flat together with junk, drugs, furniture, clutter, foul smells. Would you like to live in such confinement? The Audit Commission has clearly identified a comprehensive failure to follow procedures which include Lettings. Clearly Notting Hill Housing is aware it has wrongfully housed 3 people in unsuitable conditions. How long will they continue to ignore the problem?

Sebastian Kornhauser


Severe Disrepair

19.03.2005 22:10




What would you do if you have just left care and the Registered Social Landlord gave you one offer of accommodation. How would you react if you were offered you a home in this state? Bearing in mind that if you refuse this offer you do not get another opportunity for housing and as the policy states " Become homeless of your own volition".

Sebastian Kornhauser


Housing Corporation

19.03.2005 22:59




The Housing Corporation is responsible for investing public money in housing associations and for protecting that investment to ensure it provides decent homes and services for residents. The Housing Corporation invests money into Housing Associations throughout Britain in the "good faith" that Housing associations will provide homes that meet local needs. One of the most important key objectives of the Housing Corporation is to fund, regulate and monitor Housing associations such as the Notting Hill Housing Trust to ensure that it is properly governed and viably managed.

However Notting Hill Housing choose to discriminate me. They offered me a home which was unsuitable for human habitation. When Notting Hill Housing Trust agreed to pay out of Court settlements in 2004 to save loosing the case in court and incurring more costs they also had to cover all the costs, expenses and legal fees to their own lawyers who and to those who represented me. This amounted approximately to around £100'000. That is one tenth of £1'000'000.

How can Notting Hill Housing justify before the Audit Commission that squandering £100'000 of public money on fighting legal cases to defend their wrongful actions when they were in the wrong to begin with was in the public interest? Their housing policy is still wrong today as it was then and incompatible to peoples needs and modern living for the 21st century. Other residents too will start to sue them and Notting Hill Housing will waste more public money. There are many disabled residents who will soon sue the Housing Association for it does not respect the rights of people with disabilities.

Sebastian Kornhauser


NOTTING HILL HOUSING TRUST - ABUSE OF TENANTS RIGHTS

10.05.2006 13:19

I AM DISGUSTED WHAT AN UNACCOUNTABLE HOUSING ASSOCIATION OTHERWISE KNOWN AS A REGISTERED SOCIAL LANDLORD CAN DO TO DISCRIMINATE AGAINST A DECENT TENANT FOR SUBMITTING A WRITTEN COMPLAINT TO HIS LANDLORD THAT THE LANDLORD IS LIKELY TO KILL HIS NEIGHBOUR IF THE LANDLORD - NOTTING HILL HOUSING TRUST - DOES NOTHING.

THE LANDLORD - NOTTING HILL HOUSING TRUST - DID NOTHING
THE TENANT - WHO COMPLAINED SO MANY TIMES - WAS KILLED

THIS IS MURDER IF THERE WAS THE NECESSARY DEGREE OF INTENTION - IF NOT - THIS WAS MANSLAUGHTER

IF THE CHAIRMAN AND THE CHIEF EXECUTIVE WERE INFORMED IN WRITING AND THEY BOTH DID NOTHING WHEN INFORMED OF THESE BREACHES OF LAW - THIS MAKES THE CHAIRMAN & THE CHIEF EXECUTIVE CRIMINALLY LIABLE IN ADDITION TO BEING LIABLE IN CIVIL LAW

IF BOTH THE CHAIRMAN & THE CHIEF WERE BOTH NOTIFIED IN WRITING THIS MAKES THE CHAIRMAN & THE CHIEF EXECUTIVE CRIMINALS!


IS THE CHAIRMAN OF NOTTING HILL HOUSING TRUST A CRIMINAL?


IS THE CHIEF EXECUTIVE OF NOTTING HILL HOUSING TRUST A CRIMINAL?

paul


DIRTY SCAMS AT: NOTTING HILL HOUSING TRUST?

10.05.2006 13:41

Does Mr Kornhauser know of the secret scheme of HOUSES for VOTES? I wonder?


This is the scam organised through JOHN PRESCOTT at the ODPM & put in place by RUTH KELLY or is it RUTH GADD [she passed her solicitors exams and married DEREK GADD - a local government officer - she wears the trousers and he looks after the children - how are his pink marigolds? - she's a member of the dangerous & secretive Catholic organisation 'Opus Dei' - links to Cherie Blair or is it Cherie Blair?] as the COMMUNITIES & LOCAL GOVERNMENT Secretaty of State.


Her 'Secret Scheme' [well it's the Secret Scheme of TONY BLAIR to be technically accurate] is to put in place the 'Houses for Votes' scam for Asylum Seekers and for those with no link with this country. [GERRYMANDERING - to be re-elected! THE COMMUNIST STATE!!!]


But CAROLINE SPELMAN the shadow Communities & Local Government Secretary of State knows the scam - as does DAVID CAMERON of Finstock Road, W10 6LT.


Those in the know - we all know - but it is a dirty scheme isn't it Ruth?


Deviously clever?

martin


NOTTING HILL HOUSING TRUST - ARE THEY MURDERERS?

15.05.2006 19:05

NOTTING HILL HOUSING TRUST - ABUSE OF TENANTS

It is IMPORTANT - VITAL - to realise the powerful LINK from the very heart of the LABOUR PARTY to the control of NOTTING HILL HOUSING TRUST through LORD TOM SAWYER [ex LABOUR PARTY Chairman] - TONY BLAIR - LORD CLIVE SOLEY [ex LABOUR PARTY Councillor HAMMERSMITH & FULHAM] - NIC RAYNSFORD MP [ex LABOUR PARTY Councillor HAMMERSMITH & FULHAM] - TONY BLAIR - LORD NEIL KINNOCK - GERARD LEMOS [CHAIRMAN of NOTTING HILL HOUSING TRUST] - KATE DAVIES [CHIEF EXECUTIVE of NOTTING HILL HOUSING TRUST].

The person who set out the dirty blueprint to discredit good tenants is done through the front line staff with strange sounding names employed at NOTTING HILL HOUSING TRUST. Most are incompetent, most are inefficient, most are poorly educated, most speak poor English, but most are very unpleasant and seem to be tasked to confront the most pleasant tenants.

The most intelligent tenants and the not so intelligent tenants know the methods and the signatures used. These are the methods - the very same methods - used by the likes of the most notorious, most wicked, most evil, most cowardly, most bullying, most vile, most dirty landlords that have ever existed in the United Kingdom. PETER RACHMAN who originated in NOTTING HILL and NICHOLAS VAN HOOGENSTRATEN used some of the methods that are now being adopted and developed with government support by ROTTING HELL HOUSING TRUST or is it NOTTING HILL HOUSING TRUST - the flagship REGISTERED SOCIAL LANDLORD (RSL) in London and in this country?

How dare GERARD LEMOS and KATE DAVIES attack good pleasant honourable tenants by the underhand methods set out in the books of what is clearly SOCIAL ENGINEERING in the books of LABOUR PARTY member GERARD LEMOS and adopted with glee by LABOUR PARTY member LORD TOM SAWYER and legislated for by LABOUR PARTY member TONY BLAIR in order to garner the VOTE to win a GENERAL ELECTION for the LABOUR PARTY.

LABOUR PARTY member GERARD LEMOS and LABOUR PARTY member KATE DAVIES have both only ever known a HIGHLY PRIVILEGED background of expense account living that other poorer people have to pay out of the meagre pennies the vulnerable tenants are obliged to gather together.

POVERTY in this country is linked inextricably to HOUSING and its availability.

The availability of HOUSING in LONDON and the country is organised by the GOVERNMENT.

Therefore POVERTY is orchestrated through the connection to GOVERNMENT.

FLAGSHIP REGISTERED SOCIAL LANDLORD = LABOUR = DICTATORIAL ATTITUDE

VOTE LABOUR = placing good tenants in purported RENT ARREARS?

VOTE LABOUR = placing good tenants in properties with major DISREPAIR?

VOTE LABOUR = placing good tenants in properties with NEIGHBOURS FROM HELL?

VOTE LABOUR = placing good tenants in properties with the management being confrontational, negative and hostile?

VOTE LABOUR = placing good tenants in properties where the management do not communicate or consult adequately or at all?

VOTE LABOUR = placing good tenants in properties where the management ensure the VICTIMS appear as the PERPETRATORS and the PERPETRATORS appear as the VICTIMS?

VOTE LABOUR = placing of good tenants in properties where the senior management appear to act in BREACH OF TRUST?

NOTTING HILL HOUSING TRUST is a CHARITY

A CHARITY means that the DIRECTORS must be very careful how they act otherwise they can be IMMEDIATELY taken to the HIGH COURT and held PERSONALLY LIABLE in BREACH OF TRUST!!!

As Jackie reminds us:

The DIRECTORS of NOTTING HILL HOUSING TRUST are TRUSTEES.

The TENANTS are BENEFICIARIES of the CHARITABLE TRUST.

TRUSTEES have a LEGAL DUTY to act in the BEST INTERESTS of the BENEFICIARIES

If NOT - the MANAGEMENT commit a BREACH OF TRUST - a very serious breach of law.


Be aware of the actions of the TRUSTEES/DIRECTORS of NOTTING HILL HOUSING TRUST


Are you a VICTIM?

Watch out - NOTTING HILL HOUSING TRUST staff will soon want to identify you as the PERPETRATOR?

LABOUR PARTY Chairman [ex head of NATIONAL UNION OF PUBLIC EMPLOYEES/UNISON] LORD TOM SAWYER and his pals want to ensure that NOTTING HILL HOUSING TRUST will be able to have the power to issue Anti-Social Behaviour Order's (ASBOs) through delegated powers from the Local Authorities. Be aware as to what is going on.


Be aware that a vote for LABOUR is a way to be targeted as the VICTIM!

[But the real VICTIM = the perceived PERPETRATOR.]

The political DICTATORSHIP is rapidly approaching [or has it already arrived?].

DO NOT LET DYSFUNCTIONAL, EVIL, ARRIGANT HYPOCRITES WHO ARE LABOUR PARTY members that wanted to abolish the HOUSE OF LORDS be 'CASH PEERS' & THEN TO ALLOW THEM TO MAKE UNACCOUNTABLE LAWS [AS THEY WERE NEVER ELECTED TO THE HOUSE OF LORDS] FOR ALL PEOPLE IN THIS COUNTRY TO BE SHACKLED TO - WHAT KIND OF DEMOCRACY IS THIS?

LABOUR IS CORRUPT FROM TONY B.LIAR TO THE UNACCOUNTABLE CHARLES FALCONER [TONY B.LIAR'S EX FLAT MATE] TO ALL THE TOP HEAVY CRONIES OF THE CORRUPT LABOUR PARTY AND THE TOP HEAVY HOUSE OF LORDS WITH ITS DISCREDITED CASH PEERS WHO GAVE MILLIONS TO LABOUR LORD, LORD MICHAEL LEVY.

WHAT OF THE LORD OF THE BLOG OF 24 BIRCH GROVE, EALING COMMON - WAS HE PAID UNACCOUNABLE FUNDS OR WAS IT A CASH PEERAGE FOR ORGANISING LABOUR MPs TO VOTE FOR TONY B.LIAR'S WAR IN IRAQ AS CHAIRMAN OF THE LABOUR PARTY PARLIAMENTARY LABOUR PARTY (PLP)?

IS A TONY B.LIAR NUCLEAR WAR IN IRAN NEXT?


WE DESERVE TO BE CONSULTED


THIS IS LIKE NOTTING HILL HOUSING TRUST - A CRIMINAL ORGANIZATION WITH NO CONSULTATION - NO ACCOUNTABILITY - NO TRANSPARENCY.

MRS BLAIR IS MEANT TO BELIEVE IN HUMAN RIGHTS SO WHY DOES SHE SAY NOTHING ABOUT THE CRIMINAL BNEHAVIOUR OF HER HUSBAND - OR IS THIS THE SIGN OF THE HYPOCRITE WHO SAYS MUCH & DOES NOTHING?

IS THIS WHY RUTH KELLY [OF THE ULTRA SECRET CATHOLIC ORGANIZATION OPUS DEI] PURPORTS TO BE A CATHOLIC TO GET THE SUPPORT OF MRS BLAIR IN ORDER TO GET THE SUPPORT OF TONY B.LIAR THROUGH PILLOW TALK. SHE IS ALL FOR RIFDDING PLANNING REGULATIONS IN ORDER TO ORGANISE UNLIMITED TAXPAYERS MONEY ON PUBLIC SECTOR HOUSING FOR IMMIGRANTS.


HIGH PRIORITY FOR HOUSING: IMMIGRANTS


LAW PRIORITY FOR HOUSING: NON IMMIGRANTS


THE EVIDENCE MAKES IT VERY CLEAR NOTTING HILL HOUSING TRUST ARE CRIMINALS - ARE THEY MURDERERS?

ARE NOTTING HILL HOUSING TRUST AS LANDLORDS MURDERERS?


DID NOTTING HILL HOUSING TRUST AS LANDLORDS COMMIT MANSLAUGHTER?


A FANTASTIC LADY WHO WAS WELL KNOWN WAS NEEDLESSLY KILLED BY HER LANDLORDS - NOTTING HILL HOUSING TRUST

NOTTING HILL HOUSING TRUST ARE EVIL

A GOOD LADY IS KILLED BY THE NEGLIGENCE OF HER LANDLORDS & IN BREACH OF TRUST & DO THE LANDLORDS NOT TRY TO COVER UP THE CRIME BY RAPIDLY INITIATING REPAIRS?

LABOUR PARTY LORD LORD TOM SAWYER OF 22 INCHMERY ROAD, CATFORD

LABOUR PARTY LORD LORD CLIVE SOLEY OF 24 BIRCH GROVE, EALING COMMON

A NOT RIGHT HONOURABLE LABOUR PARTY MEMBER NIC RAYNSFORD

A NOT RIGHT HONOURABLE LABOUR PARTY MEMBER JOHN PRESCOTT

A NOT RIGHT HONOURABLE LABOUR PARTY MEMBER RUTH KELLY/RUTH GADD

ALL LABOUR MEMBERS & SENIOR LABOUR PARTY MEMBER TONY B.LIAR SHOULD ALL HANG THEIR HEADS IN SHAME


NOW ARE THEY ALSO COMPLICIT IN MURDER OR IS IT JUST MANSLAUGHTER?


HOW FAR WILL THE LABOUR PARTY STOOP?




errol

errol
mail e-mail: ewhite@hotmail.com


NOTTING HILL HOUSING TRUST SCANDAL

29.07.2006 05:38

I have been following the debate of the abusive behaviour from the managemernt of Notting Hil Housing Trust to the tenants and I think it is downright disgraceful how they can behave in such a callous and vindictive way.

The point is made clear that Ms Kate Davies was not the person to act as Chief Executive.

The tenants state she neither listens not consults nor communicates - the art of a good leader.

Peter Redman was a good Chief Executive, however he was unfortunately obliged to fall on his sword when it was revealed that at least 45 properties of the housing stock of the Trust were misappropriated - those that were known about.

Ms Kate Davies from Servite Houses has been interviewed by her PA, which seems to any outsider as very tacky, unprofessional and as if she has much to hide.

It is unbelievable that 26% of the rental income of the Trust properties is spent on management costs - what exactly is going on at the Trust these days???

The Notting Hill Housing Trust has been allowed to be run by third rate politically motivated management whose prime duty has been defocused and distracted from the tenant beneficiaries of the Trust to the wider political clientele.

If nothing is done soon, it will be a case of terminal decline of the Trust, with a top heavy bureaucracy which is complacent and ignorant of its main purpose - the servicing of the properties of its tenant beneficiaries.

I only hope the Chairman is a of a far better calibre than its lack lustre Chief Executive, who appears to have been massively over promoted.


paul white


I was at a meeting at the House of Commons yesterday attended by NHHT tenants

21.02.2007 16:43

I attended a meeting yesterday evening at the House of Commons Portcullis House. The agenda related to Housing Policy issues. Apart from cross party MPs, also around the table were some very articulate tenants of Notting Hill Housing Trust and after hearing them, I was disgusted at what they have been obliged to go through. Indeed, that same evening I heard one of the tenants who had been at the political meeting speak on national radio and the presenter said he, as an MP, remembered the tenant sitting at the top of the table near the chairman. The tenant said he lived in west london and he spoke with very deep insight and knowledge. He was very articulate and would make a first class politician. Other tenants there, who shared the same landlord housing association, seemed to be very clued up.

From a legal point of view the confrontation the tenant referred to would be unlawful.

From a political point of view the confrontation referred to sounded horrific.

Right to the top of the agenda is going Housing.


Many cross party MPs are realising the political capital and what this will mean for the future of the prime minister.


Some of the tenants of the Notting Hill Trust are very intelligent and realise only too well the failings of what appear as the blatantly discriminatory policies of their social landlords.

Certainly, the directors of Notting Hill Housing Trust would be foolish in the extreme to ignore the criticisms of management policy and they would do so at their peril. If the directors and senior management had any sense, they should engage with these select tenants and ideally corral them onto the board at their very first opportunity.

frank


NHHMAFIA, DON'T LET NHHTrustTO TAKE YOUR LIFE 23/46 Warwick Road, London SW5 9EH

20.06.2007 20:59

I have been tenant of bloody Notting Hill Housing CRIME/SCAM association for about 4 years and I almost lost my body due to harrassment, abuse by, so-called, Support Officers, Gilbert Malin, Paul Baron, mafia. This NHH CRIME Org and their staff are real terorists, criminals, mafia.

I stop paying the rent to them and am not paying the rent fmore than 3 years. Actually, the money I own them is more than £8000,00. Now, I am in court for possession and representing myself in court. And DO YOU KNOW WHAT PEOPLE, I DO NOT CARE IF THEY WANT TO REPOSSES THEIR SHED SO CALLED FLAT AS I DO NOT WANT TO LIVE AND BE TENANT AND BE ASSOCIATE WITH THESE CEIMINALS, THIEFS, MURDERRES, FASCISTS, NAZISTS.

I REALISED, HOW LOW ONE CAN GO TO BE ASSOCIATED WITH THIS SCAM AND SCAMPS.

IF YOU WANT TO LIVE AND DO SOMETHING ELSE IN YOUR LIFE THEAN THINK EVERY DAY ABOUT NHHT, JUST THINK ABOUT PLAN B AND GO LIVE PRIVATELY.

THESE ARE NOT OUR FLATS. THEY ARE A BIT CHIPER, BUT WHAT YOU GET WITH THAT: CONCENTRATION CAMPS, THERE ARE NO FLATS, THEY ARE CELLS IN CONCENTRATION CAMPS. THANK YOU VERY MUCH. I AM PENNYLESS BUT DO NOT WANT BE ASSOCIATE WITH NAZCI, FASCIST NHHT AND HAVE NEIGHBOURS DRUG DEALERS, ADDICTS, EX-PRISONERS ETC. I AM LOOKING BIGGER PICTURE. THIS IS NOT LIFE.

I RECOMMEND THE SAME TYO EVERY ONE. STOP PAY THE RENT. COLLECT SOME MONEY AND GO LIVE PRIVATELY. RUN AWAY FROM THE SEMI GRAVE YARDS AND GO AND LIVE. LIFE IS BEAUTIFUL AND IT IS NOT NHHT AND THEIR MAFIA FRIENDS IN LOCKAL GOVERMENT. PLEASE FORWARD THIS TO THE REST IN THE GROUP.

THANK YOU AND GET UP, STEND UP FOR YOURSELF, MAKE DECISIONS NOW AND CONFRONT EVERYTHING AND DO NOT BE AFFRAID AS NOBODY CAN POSSESS YOU IF YOU DO NOT LET THEM.

REGARDS, NADA VOROTOVIC

Nada Vorotovic
mail e-mail: nmontenero8@yahoo.com


Notting Hill Crime Cartel is run by Mafia for the Mafia... Crime Inc.

05.09.2007 20:24

I am sick and tired of the pathetic excuses that think of themselves as Labour Party politicians who have done nothing for their constituents or tenants -
Yes - they do lie
Yes - they are deceitful
Yes - they connive with the management of Notting Hill Housing Crime Cartel to unlawfully evict good reasonable tenants who are treated like passive slaves to be slaughtered.

evil souls like the deceitful Labour Lords Sawyer and Soley - that windbag Kinnock and that deceitful "spinning-meister" which normal people call a liar and a dissembler, Mr B.lair - the Liar in Chief?

It was that liar Mr Blair that nominated Mr Tom Sawyer who was head of the Labour Party as Chairman of the Mafia Notting Hill Housing after he made sure he gave Mr Sawyer an unaccountable Labour Party peerage for stitching-up the NUPE or was it the UNISON Union?

It was Councillor Dame Sally Powell that creep who brought in 24 hour driniking and was found slumped over the wheel of her car in Harley Street and was never banned - like normal people - married to Labour MP Iain Coleman of Hammersmith & Fulham. But Councillor Dame Sally Powell of Coverdale Road, W12 was a solicitor and was a partner of the Solicitors firm in Peckham called Glazer Delmar. Is that not a dodgy solicitors firm of solicitors in Peckham that represent the gangs who are killing, pushing crack and heroin and increasing their crack dens and drug profits and the solicitors firm is used by Notting Hill Housing, which is the deceitful underhand criminal way to try to evict good respectable tenants in Hammersmith and Fulham and in Kensington and Chelsea?

Only a Mafia controlled criminal organization like Notting Hill would use dodgy solicitors based in Peckham - why?

So Councillor Dame Sally Powell was in charge of Housing in Hammersmith and on the all powerful National Executive Committee (NEC) controlled by Mr Liar Blair that controlled the policies of the Labour Party like the gerrymandering that is now going on in the Borough to corrupt the vote out of the other political parties through Housing Allocation policies. All Corrupt Criminals?

Is it true that the Labour Party solicitors firm gave money to the Labour Party?

Is it true that the Solicitors firm represents the evil Notting Hill Housing and also the tenants that are buying their unfit or unacceptable properties that are like a slum?

What of the Charity money from the 21 charity shops - is that used for the champagne and caviar lifestle of the 6 figure pay and no expense spared platinum credit card account of the chief exucitive who never responds to any tenants who live in a Notting Hill Housing slum?

Is it true that the Chief Executive is a Nazi who hates Jews and hates any tenant who has a different lifestyle?

The criminal Directors of the Mafia housing association are fired with evil intent and never try to represent the tenants but attack and try to destroy them at every opportunity

How many properties of the 19,000 Notting Hell Housing are in good repair and fit to live in?

How many more than the "761" Official complaints against the under-educated, ignorant, rude and the criminally motivated management are the true figure of real complaints against the criminal tactics of the management towards the good tenants that are treated like innocent lambs to be slaughtered by the Notting Hill Housing Criminals that misdirect and run the Housing Association like their secret empire and how many properties have they truly managed to lose?

The Notting Hill Housing Crime Cartel ensure that the Chairman, Chief Executive and all the Directors are members of the unaccountable Labour Party that does not consult or listen to any of its tenants. It is a criminal Mafia organization designed to be unmaccountable and not fit for purpose

The Directors of Notting Hill Housing are the evil Mafia of Hammersmith west London.

It is shocking how so many good tenants can be put into depression and treated like scum by evil Mafia criminals of the Labour Party unaccountable Housing Association - like the chief executive?

John
mail e-mail: j.jackson@hotmail.com


How about St Charles

24.02.2008 08:45

St Charles hospital have a mental health unit in Ladbroke Grove.

Why don't you pop down there and ask for an assessment as to how this situation is affecting your mental well being?

Maybe they can help you to cope better with the distress you are currently feeling.

Paul


St. Charles

12.05.2008 21:44

Yeah .... and send Notting Hill Housing Trust a bill for the psychiatric treatment and mental distress caused from slum housing.

Amanda


I don't get it

19.05.2008 23:10

I don't understand any of this? What is the purpose to all this oppression of persons living in social housing and the need for generic slum housing? Why? What good does this nonsense of creating mental suffering to people bring?

Dacas


Kollektives

Birmingham
Cambridge
Liverpool
London
Oxford
Sheffield
South Coast
Wales
World

Other UK IMCs
Bristol/South West
London
Northern Indymedia
Scotland

London Topics

Afghanistan
Analysis
Animal Liberation
Anti-Nuclear
Anti-militarism
Anti-racism
Bio-technology
Climate Chaos
Culture
Ecology
Education
Energy Crisis
Fracking
Free Spaces
Gender
Globalisation
Health
History
Indymedia
Iraq
Migration
Ocean Defence
Other Press
Palestine
Policing
Public sector cuts
Repression
Social Struggles
Technology
Terror War
Workers' Movements
Zapatista

London IMC

Desktop

About | Contact
Mission Statement
Editorial Guidelines
Publish | Help

Search :